• Nový kvalitní mobilheim za rozumnou cenu
  • Zateplený mobilheim je vhodný i pro trvalé bydlení
  • Mobilheim celoroční jako zvětšení rodinného domu
  • Mobilheim jako rekreační objekt
  • Mobilheim jako ubytovací zařízení do kempů
  • Mobilheim jako kancelářské prostory
  • Mobilheim jako sklad
Mobilheim Hluboká nad Vltavou

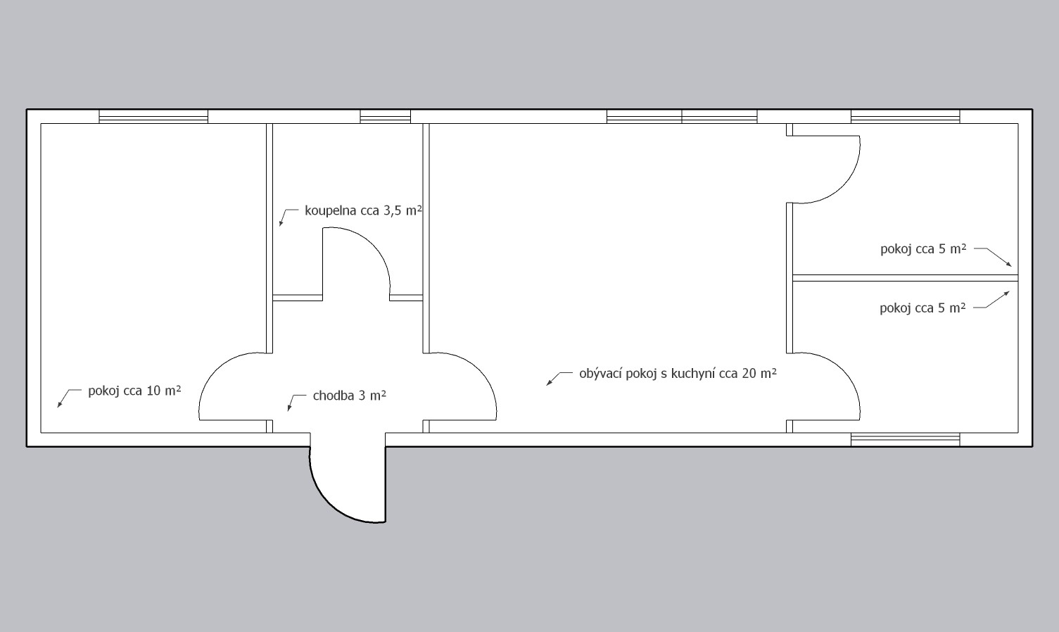
Nový ROSI 4KK - Celoroční - plochá střecha

Rozměry: 13, 39 x 4,19 (cca 56m2)
Rozvržení: 3 ložnice, obývací pokoj s kuchyňským koutem, koupelna, WC
Výbava: Nový, fasádní lepidlo a dřevěný obklad, plochá střecha, vnitřní stěny sádrokarton v kombinaci s dřevěným obkladem, strop dřevěný obklad, podlaha zátěžové lino, kuchyně, (dřez, digestoř, varná deska s troubou), koupelna (WC, umyvadlo, sprchový box, bojler 80l) v celém mobilheimu světlá výška stropu 2,5m
Dostupnost: na objednání
Cena: 1 999 000 Kč vč. DPH

Pokud si nevyberete mobilheim z naší nabídky, tak Vám rádi vyrobíme mobilheim podle Vašich představ.

mobilheim_4kk mobilheim_4kk_rosi mobilheim_ROSI4kk_plocha_strecha_53m2 ROSI4kk_plocha_strecha_53m2

Mobilní domy Jižní Čechy s.r.o.

Tel: +420 606 757 065,

Email: info@mobilheim-hluboka.cz

mobilni-domy-jizni-cechy-facebook  mobilni_domy_pinterest  mobilni_domy_jizni_cechy_blogger  mobilni_domy_jizni_cechy_youtube 

Prodejní centrum Mobilheim Hluboká:

Hluboká nad Vltavout - Zámostí u vlakového nádraží

GPS: 49.0501917°N, 14.4654153°E

mobilni_domy_jizni_cechy

Mobilheim Hluboká - Nový mobilheim celoroční výroba

Mobilhem Hluboká - Nový mobilheim celoroční přeprava

 

TENTO WEB POUŽÍVÁ COOKIES
Pokud kliknete na „Přijmout vše“, poskytnete tím souhlas k jejich ukládání na vašem zařízení, což pomáhá s navigací na stránce, s analýzou využití dat a s našimi marketingovými snahami.
Více informací
  1. Jsou nezbytné k tomu, aby web fungoval, takže není možné je vypnout. Většinou jsou nastavené jako odezva na akce, které jste provedli, jako je požadavek služeb týkajících se bezpečnostních nastavení, přihlašování, vyplňování formulářů atp. Prohlížeč můžete nastavit tak, aby blokoval soubory cookie nebo o nich posílal upozornění. Mějte na paměti, že některé stránky bez těchto souborů nebudou fungovat. Tyto soubory cookie neukládají žádné osobní identifikovatelné informace.
  2. Pomáhají sledovat počet návštěvníků a také z jakého zdroje provoz pochází, což nám umožňuje zlepšovat výkon stránky. Můžeme s nimi určovat, které stránky jsou nejoblíbenější a které nejsou oblíbené, a také sledovat, jakým způsobem se návštěvníci na webu pohybují. Všechny informace, které soubory cookie shromažďují, jsou souhrnné a anonymní. Pokud soubory cookie nepovolíte, nebudeme vědět, kdy jste navštívili naši stránku.
  3. Tyto soubory cookie mohou na naší stránce nastavovat partneři z reklamy. Mohou je používat na vytváření profilů o vašich zájmech a podle nich vám zobrazovat reklamy i na jiných stránkách. Neukládají ale vaše osobní informace přímo, nýbrž přes jedinečné identifikátory prohlížeče a internetového zařízení. Pokud je nepovolíte, bude se vám zobrazovat na stránkách méně cílená propagace.

Svůj souhlas můžete kdykoliv změnit nebo odvolat kliknutím na odkaz Cookies v zápatí webu.